埼玉県上尾市,桶川市,北本市,鴻巣市,さいたま市のリフォームはLIXIL認定のリフォーム専門店・ヒロタ!
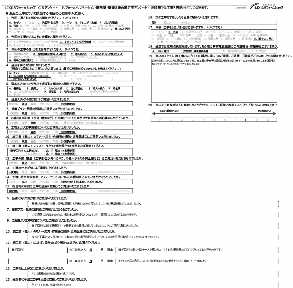
今回工事された部位をお聞かせください。
キッチン,洗面所・脱衣所,トイレ,ダイニング(食堂),リビング(居間),和室,壁・クロス・天井
今回の工事のおおよその金額をお聞かせください。
100~300万円未満
今回の工事のきっかけをお聞かせください。
住宅設備が古くなった・壊れた,家の老朽化,好みのデザインに変えたかった,将来の災害に備えて
当店を何でお知りになりましたか。
チラシ,知人紹介,店があることを知っていた
数ある店の中から当店を選ばれた理由をお聞かせ下さい。
信頼性,提案力,スタッフの人柄,店の雰囲気,知人の紹介,知名度,価格面,地元の店だから
当店スタッフの応対にはご満足いただけましたか。
満足
提案プラン・見積の説明はご満足いただけるものでしたか。
満足
お客さまの私物(水道・電気など)の利用についての声がけや説明などの配慮はいかがでしたか。
普通
工程および工事期間についてはご満足いただけましたか。
普通
施工者(職人)のマナー・応対にはご満足いただけましたか。
満足
施工者について、良かった点や悪かった点があれば教えてください。
(勝手口ドア)の工事をした人 良
理由()
( )の工事をした人 良
理由()
工事の際、養生(工事部位以外へのホコリの侵入やキズの防止策など)はご満足いただけるものでしたか。
満足
工事の仕上がりにはご満足いただけましたか。
大変満足
引渡し時の取扱説明、アフターサービスについての説明がご安心いただけるものでしたか。
満足
総合的に今回の工事を当店に依頼してご満足いただけましたか。
大変満足
次に工事をするとしたら当店に頼みたいと思いますか。
思う
今後、工事をしたい部位はございますか。
浴室,壁・クロス・天井






